Maison de Village T3 à LAURIS (84360) avec GARAGE

Maison
Lauris

199 300 €

Réf : CD-VV285

3 pièce(s) 2 chambre(s) 58.46 m² 41 m²

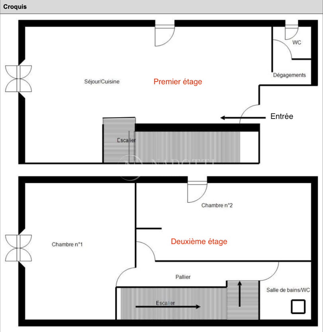
L'agence Nadotti Immobilier Cadenet vous propose en exclusivité à Lauris (84360), une maison de village d'environ 58m2 idéalement située au calme et à proximité des commerces à pied avec un grand garage. Au rez-de-chaussée, vous disposerez d'une entrée et d'un grand garage d'environ 29m2 avec un espace buanderie. A l'étage, le séjour double exposition avec cuisine ouverte équipée, ainsi qu'un WC indépendant. Au deuxième étage, un dégagement , deux chambres avec placards intégrés et une salle de bain avec WC. Idéal premier achat ou investissement locatif Belles prestations: climatisation réversible, chauffe eau thermodynamique, menuiseries double vitrage PVC, FTTH, toiture isolée, pas de travaux à prévoir. DPE B The Nadotti Immobilier Cadenet agency exclusively offers this 58sqm village house in Lauris (84360), ideally located in a quiet area within walking distance of shops, and featuring a large garage. The ground floor comprises an entrance hall and a spacious garage of approximately 29sqm with a laundry area. Upstairs, you'll find a dual-aspect living room with an open-plan fitted kitchen, as well as a separate WC. The second floor includes a landing, two bedrooms with built-in wardrobes, and a bathroom with WC. Ideal for a first-time buyer or as a rental investment. High-quality features include: reversible air conditioning, a thermodynamic water heater, PVC double-glazed windows, fiber optic internet (FTTH), and an insulated roof. No work is required.

Général

  • Type de bien
    Maison
  • Type de transaction
    Vente

Général

  • Eaux pluviales
    Oui
  • Eaux usées
    Oui

Aspects financiers

  • Taxe Foncière
    690 €
  • Prix du bien à la vente si renseigné
    199 300 €

Extérieur

  • Année de construction
    1995
  • Aspect
    Pentu
  • Assainissement
    Tout à l'égout
  • Informations complémentaires
    0
  • Etat extérieur
    Bon
  • Etat général
    Bon Etat
  • Fenêtres
    PVC Double Vitrage
  • Isolation
    Par le toit
  • Neuf - Ancien
    Ancien
  • Standing
    Bon
  • Volets
    Bois

Surfaces

  • Surface terrain
    41 m²
  • Surface habitable
    58.46 m²
  • Surface séjour
    24.38 m²

Localisation

  • Distance d’accès au bus
    1 min
  • Distance d’accès à l’école
    2 min
  • Mitoyenneté
    3 côtés
  • Nombre d’étages
    2
  • Numéro du dernier étage
    2
  • N° Etage
    1
  • Style
    Années 2000

Intérieur

  • Nombre de pièce
    3
  • Nombre de niveaux
    3
  • Nombre de salle de bain
    1
  • Nombre de WC
    2
  • Nombre de chambre
    2
  • Calme
    Oui
  • Type de chauffage
    Individuel
  • Clair
    Oui
  • Climatisation
    Oui
  • Cuisine
    Ouverte Aménagée Equipée
  • Etat intérieur
    Bon
  • Exposition Séjour
    Est
  • Mécanisme de chauffage
    Air pulsé
  • Mode Chauffage
    Climatisation réversible

Terrain

  • Assainissement collectif
    Oui

Autres

  • Interphone
    Oui
  • Nombre garage/Box
    1
  • Type de Stationnement
    Garage double

Diagnostics

  • Montant minimum estimé des dépenses annuelles d'énergie pour un usage standard
    510 €
  • Montant maximum estimé des dépenses annuelles d'énergie pour un usage standard
    740 €
  • Valeur conso annuelle énergie
    79 kWh/m2 par an
  • Diagnostic de consommation énergétique
    B
  • Diagnostic de gaz à effets de serre
    A
  • Valeur Gaz Effet de serre
    3 Kg CO2/m2/an

Classes DPE/GES

image-dpe
79
image-ges
3

Contactez-nous

Biens similaires

Qui sommes-nous

ADAPTABILITÉ

Qui sommes-nous

SATISFACTION GARANTIE

Qui sommes-nous

EXPERTISE