PERTUIS - T4 duplex 80m2 avec garage et terrasse

Maison
Pertuis

315 000 €

Réf : CD-VV293

4 pièce(s) 2 chambre(s) 78.83 m² 180 m²

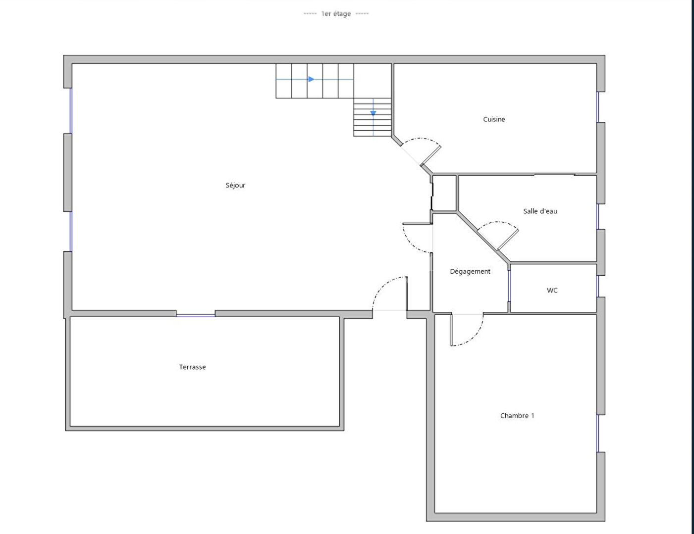
EXCLUSIVITÉ- A VENDRE PERTUIS (84120) appartement T4 duplex de 83,78m2 AVEC GARAGE ET TERRASSE (78,83m2 en Carrez) Situé à Pertuis, dans un lotissement recherché, votre Agence NADOTTI vous propose en exclusivité ce bel appartement T4 en duplex qui offre un cadre de vie agréable, alliant calme, luminosité et proximité des commerces à pied. D'une surface au sol totale de 83,78 m², ce bien se distingue par son organisation fonctionnelle et ses espaces bien répartis sur deux niveaux: Au premier niveau, vous découvrirez un séjour spacieux et lumineux ouvrant sur une terrasse semi-couverte d'environ 13 m², idéalement exposée plein Sud, une cuisine toute équipée, une chambre avec dressing, une salle de d'eau, un WC indépendant. A l'étage : une chambre supplémentaire, un bureau ou une 3ème chambre, et une salle d'eau avec WC offrant un espace nuit distinct et fonctionnel. Vous apprécierez sa terrasse exposée Sud, son garage fermé sécurisé, ainsi qu'une place de stationnement privative et ses rénovations. Vous serez également séduit par ses faibles charges de copropriété et l'absence de procédure garantissant un cadre juridique serein. Ce bien offre un équilibre recherché entre confort, situation et qualité de vie, constituant ainsi une opportunité idéale pour une résidence principale ou un investissement de qualité. Pour plus d'informations ou organiser une visite, contactez-nous. EXCLUSIVE - FOR SALE PERTUIS (84120) 3-bedroom duplex apartment of 83.78sqm WITH GARAGE AND TERRACE (78.83sqm Carrez law). Located in a sought-after residential area of Pertuis, your NADOTTI Agency exclusively offers this beautiful 3-bedroom duplex apartment, providing a pleasant living environment that combines tranquility, natural light, and proximity to shops within walking distance. With a total floor area of 83.78 sqm, this property is distinguished by its functional layout and well-distributed spaces over two levels: On the first level, you will find a spacious and bright living room opening onto a semi-covered terrace of approximately 13 sqm, ideally south-facing, a fully equipped kitchen, a bedroom with a dressing room, a shower room, and a separate toilet. Upstairs: an additional bedroom, an office or a third bedroom, and a shower room with toilet, offering a separate and functional sleeping area. You'll appreciate its south-facing terrace, secure enclosed garage, private parking space, and recent renovations. You'll also be drawn to its low condominium fees and the absence of any ongoing legal proceedings, ensuring a peaceful legal environment. This property offers a sought-after balance of comfort, location, and quality of life, making it an ideal opportunity for a primary residence or a sound investment. For more information or to schedule a viewing, please contact us. Copropriété de 57 lots. Charges annuelles : 70 euros.

Général

  • Type de bien
    Maison
  • Type de transaction
    Vente

Général

  • Construction
    Parpaing et brique
  • Eaux pluviales
    Oui
  • Eaux usées
    Oui

Aspects financiers

  • Taxe Foncière
    1 107 €
  • Prix du bien à la vente si renseigné
    315 000 €
  • Règlement particulier lotissement
    Oui
  • Charges annuelles loi ALUR
    70 €

Extérieur

  • Année de construction
    1996
  • Assainissement
    Tout à l'égout
  • Etat extérieur
    Bon
  • Etat général
    Très bon état
  • Fenêtres
    PVC Double Vitrage
  • Neuf - Ancien
    Ancien
  • Standing
    Bon

Surfaces

  • Surface terrain
    180 m²
  • Surface habitable
    78.83 m²

Localisation

  • Distance d’accès à l’école
    5 min
  • Mitoyenneté
    2 côtés
  • Nombre d’étages
    2
  • secteur
    1
  • Numéro du dernier étage
    2

Intérieur

  • Nombre de pièce
    4
  • Nombre de niveaux
    1
  • Nombre de chambre
    2
  • Climatisation
    Oui

Terrain

  • Assainissement collectif
    Oui
  • Nombre de lots
    3

Autres

  • Nombre de places parking
    1
  • Nombre terrasses
    1
  • Nombre garage/Box
    1
  • Type de Stationnement
    0

Copropriété

  • Montant de la quote-part de charges
    90 €
  • Bien en copropriété
    Oui
  • Nom des procédures de copropriété
    Pas de procédure en cours
  • Nombre de lots en copropriété
    57

Diagnostics

  • Montant minimum estimé des dépenses annuelles d'énergie pour un usage standard
    920 €
  • Montant maximum estimé des dépenses annuelles d'énergie pour un usage standard
    1 250 €
  • Valeur conso annuelle énergie
    118 kWh/m2 par an
  • Diagnostic de consommation énergétique
    C
  • Diagnostic de gaz à effets de serre
    A
  • Valeur Gaz Effet de serre
    4 Kg CO2/m2/an

Classes DPE/GES

image-dpe
118
image-ges
4

Contactez-nous

Biens similaires

Adaptabilité

ADAPTABILITÉ

Satisfaction garantie

SATISFACTION GARANTIE

Expertise

EXPERTISE